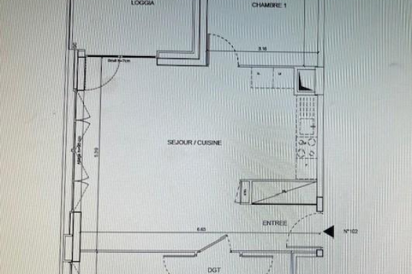
Appartement T3 de 45 m² à louer à NANTES
A LOUER - NANTES - TOUTES AIDES - Appartement MEUBLE 3 pièces de 45.18 m² - Dans un petit collectif proche des commerces de proximités et des transports, un appartement de Type 3 MEUBLE de 45m². Situé au 1er étage, cet appartement vous offre, une entrée, une pièce de vie avec cuisine aménagée et équipée (plaques de cuisson et hotte), une chambre, u...











