Louer appartement 4 pièces de 95 m²
Présentation
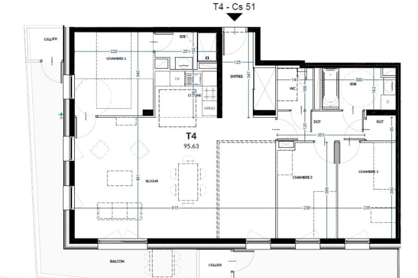
A LOUER - ST HERBLAIN - Appartement T4 de 95m² - A LOUER - SAINT-HERBLAIN. LOI PINEL Dans une résidence de bon standing, située à proximité des transports, un bel appartement 4 pièces de 95m²63, situé au 5ème étage , comprenant : une entrée avec un placard , un salon/séjour de 45 m² avec un coin cuisine ouverte aménagée et équipée ( hotte, plaque, et four), le tout ouvrant sur un balcon exposé Sud/Ouest, une chambre avec salle d'eau, dégagement desservant deux chambres, une salle de bains, WC séparés et rangement. L'appartement dispose de deux petits celliers et d'un stationnement en sous-sol.
Les charges comprennent l'entretien des parties communes, eau froide, eau chaude et chauffage.
Logement Eligible à VISALE
Vous avez entre 18 et 30 ans ou si vous êtes salarié de + de 30 ans
Testez votre éligibilité sur le site de https://www.visale.fr/
Agent de location : Julie HIEBLOT 06.38.64.13.34. Le bien est soumis au statut de la copropriété.
Loyer de 1 102,00 euros par mois charges comprises dont 151,00 euros par mois de provision pour charges (soumis à la régularisation annuelle).
Les honoraires charge locataire sont de 853,00 euros ( soit 8,92 euros/m² ) dont 289,76 euros pour état des lieux ( soit 3,03 euros/m² ).
Montant estimé des dépenses annuelles d'énergie pour un usage standard : entre 500 et 730 euros. Prix moyens des énergies indexés en 2023.
Informations complémentaires
Informations non contractuelles ne pouvant engager la société.
Surfaces approximatives non vérifiées.
Localisation du bien
Demande d'informations
Lefeuvre Immobilier Nantes Sigma 2000
Location | Gestion
Sigma 2000 - 7ème Étage
5 bd Vincent Gâche - CS 16327
44263 - Nantes Cedex 2
Service Gestion Locative : 02 46 88 00 39
Service Location : 02 51 72 94 76
Horaires d'ouverture :Du lundi au jeudi de 8h45 à 12h30 et de 13h30 à 17h30.
Le vendredi de 8h45 à 12h00 et de 13h30 à 17h00.
