Louer appartement 3 pièces de 54 m²
Présentation
A LOUER T3 neuf - avec accès à des espaces partagés et des services_ROUEN - Idéalement placé à proximité du centre de Rouen, rive gauche à 200m des commerces et restaurants et 400m des crèches et groupes scolaires, à 10 minutes à pied de l'arrêt Joffre-Mutualité (T1) et à 14 minutes à pied du centre commercial Saint Sever.
La résidence neuve NEOZ Flaubert, vous propose des appartements équipés et connectés (abonnement wifi inclus dans les charges servicielles), conçus avec des matériaux de qualité.
Profitez des espaces partagés de la résidence en accès libre accessibles PMR :
- Un espace de télétravail avec une connexion très haut débit
- Un espace lounge équipé d'un grand écran/home cinéma avec accès aux services de streaming (films/séries/évènements sportifs...) et Chromecast
- Une cuisine/salle à manger privatisable pour vos diners entre amis ou en famille
- Une salle de fitness équipée (rameur, vélo, tapis de course, banc de musculation)
- L'accès à la chambre d'amis au RDC : réservable pour vos hôtes de passage
... Et un rooftop aménagé au 8ème étage, de quoi profiter pleinement de la vue sur la ville !
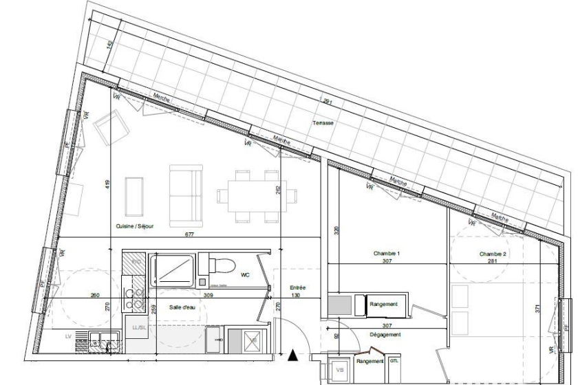
Appartement T3 non meublé de 54.23 m² composé :
- D'une cuisine entièrement équipée sur l'espace à vivre (plaque de cuisson 4 feux, Réfrigérateur congélateur, lave-vaisselle, lave-linge)
- D'une entrée avec placard
- D'un vaste séjour lumineux donnant accès sur la loggia
- D'une salle de douche aménagée
- WC séparé
- 2 chambres dont une de 13 m² donnant sur la loggia
Destiné aux familles et aux jeunes actifs, cette nouvelle offre de logements « prêts à vivre » vous permettra de simplifier votre quotidien tout en maîtrisant votre budget !
Des services inclus pour faciliter votre quotidien et les échanges :
. Un community manager et un service de conciergerie à votre écoute pour vous aider et répondre à toutes vos questions
. Des animations au sein de la résidence : profitez de cours de bien être, cours de cuisine/œnologie/sport/jeux enfants...
. La possibilité de privatiser les espaces cuisine/salle à manger et la chambre d'amis pour recevoir vos proches ou organiser un diner !
. Une application pour dialoguer avec votre gestionnaire, gérer votre logement, et accéder aux services notamment la réservation de vos animations et des espaces !
. L'accès à des services négociés en option rien que pour vous : assurances/énergie/emménagement...
Soumis au plafond de revenus (LLI)
Vous souhaitez visiter, contactez Mya au 02 52 08 01 78
https://flaubert.neoz.co/.
Loyer de 989,00 euros par mois charges comprises dont 172,00 euros par mois de provision pour charges (soumis à la régularisation annuelle).
DPE ANCIENNE VERSION.
Informations complémentaires
Informations non contractuelles ne pouvant engager la société.
Surfaces approximatives non vérifiées.
Localisation du bien
Demande d'informations

Lefeuvre Immobilier Nantes Sigma 2000
Location | Gestion
Sigma 2000 - 7ème Étage
5 bd Vincent Gâche - CS 16327
44263 - Nantes Cedex 2
Service Gestion Locative : 02 46 88 00 39
Service Location : 02 51 72 94 76
Horaires d'ouverture :Du lundi au jeudi de 8h45 à 12h30 et de 13h30 à 17h30.
Le vendredi de 8h45 à 12h00 et de 13h30 à 17h00.