Louer appartement 4 pièces de 85 m²
Présentation
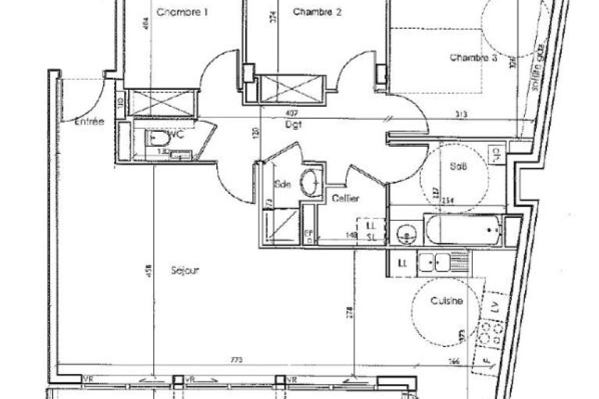
A LOUER - NANTES - CITE DES CONGRES - Appartement 4 pièces de 85.20 m² - Au cœur de ce quartier recherché, à deux pas de l'hyper centre, des transports (tramways ligne 1/2/3, bus et Busway ligne 4), commerces et de la gare, très bel appartement de standing de 4 pièces de 85.20m² . Situé au 2ème étage de cette résidence certifiée BBC de 2013 avec ascenseur, ce logement traversant vous offre un salon/ séjour ensoleillé donnant sur une terrasse de 12 m² exposée sud/est avec vue sur Loire, une cuisine ouverte aménagée et équipée (plaques de cuisson, hotte, four et lave-vaisselles), un dégagement avec cellier et WC, 3 chambres au calme côté jardin, une salle d'eau et une salle de bains. Deux places de parking en sous-sol sécurisé.
Place de parking en sous-sol. Chauffage et eau chaude : individuel au gaz.
Charges comprises : entretien des parties communes, entretien chaudière et eau froide.
Classe énergétique : C
Logement Eligible à VISALE
Vous avez entre 18 et 30 ans ou si vous être salariés de + de 30 ans
Testez votre éligibilité sur le site de https://www.visale.fr/
Agent de location : Sarah BRISSON - 06.07.22.79.75. Le bien est soumis au statut de la copropriété.
Loyer de 1 406,38 euros par mois charges comprises dont 80,00 euros par mois de provision pour charges (soumis à la régularisation annuelle).
Les honoraires charge locataire sont de 1 117,00 euros ( soit 13,11 euros/m² ) dont 258,16 euros pour état des lieux ( soit 3,03 euros/m² ).
Montant estimé des dépenses annuelles d'énergie pour un usage standard : entre 730 et 1 040 euros.
Informations complémentaires
Informations non contractuelles ne pouvant engager la société.
Surfaces approximatives non vérifiées.
Localisation du bien
Demande d'informations
Lefeuvre Immobilier Nantes Sigma 2000
Location | Gestion
Sigma 2000 - 7ème Étage
5 bd Vincent Gâche - CS 16327
44263 - Nantes Cedex 2
Service Gestion Locative : 02 46 88 00 39
Service Location : 02 51 72 94 76
Horaires d'ouverture :Du lundi au jeudi de 8h45 à 12h30 et de 13h30 à 17h30.
Le vendredi de 8h45 à 12h00 et de 13h30 à 17h00.
Biens pouvant vous intéresser

