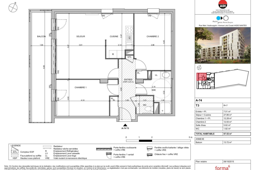
Louer appartement 3 pièces de 67 m²
Présentation
APPART'SENIORS - T3 - RÉSIDENCE SERVICES SENIORS - Située sur la pointe EST de l'ïle de NANTES, en bords de Loire, la résidence Senghor est idéalement implantée à quelques pas seulement des commerces et services de proximité et des transports en commun.
Profitez des 3 services spécifiques seniors : une animatrice sur place 5 jours par semaine, proposant des animations quotidiennes dans un club house mis à disposition des résidents, un service de conciergerie 24h/7j qui permet la mise en relation avec des prestataires et des services à la carte (aide à domicile, portage de repas...) mais aussi le bénéfice d'un crédit de 4 heures de petits bricolages au sein du logement (pose de tringle à rideaux, changement d'ampoules...).
Bénéficiez également d'une place de parking sécurisée en sous-sol.
Chauffage et eau collectif.
Contactez-nous au 02.72.01.46.06 ou par mail : courrier@appartseniors.fr. Le bien est soumis au statut de la copropriété.
Loyer de 1 108,60 euros par mois charges comprises dont 318,00 euros par mois de provision pour charges (soumis à la régularisation annuelle).
Les honoraires charge locataire sont de 726,16 euros ( soit 10,75 euros/m² ) dont 204,59 euros pour état des lieux ( soit 3,03 euros/m² ).
Montant estimé des dépenses annuelles d'énergie pour un usage standard : entre 440 et 640 euros. Prix moyens des énergies indexés en 2026.
Informations complémentaires
Informations non contractuelles ne pouvant engager la société.
Surfaces approximatives non vérifiées.
Localisation du bien
Demande d'informations
Lefeuvre Immobilier Nantes Sigma 2000
Location | Gestion
Sigma 2000 - 7ème Étage
5 bd Vincent Gâche - CS 16327
44263 - Nantes Cedex 2
Service Gestion Locative : 02 46 88 00 39
Service Location : 02 51 72 94 76
Horaires d'ouverture :Du lundi au jeudi de 8h45 à 12h30 et de 13h30 à 17h30.
Le vendredi de 8h45 à 12h00 et de 13h30 à 17h00.


