Louer appartement 3 pièces de 55 m²

Nantes (44)
811 € CC/mois
réf. GES06230004-724
 5 photos  ajouter
Exclusivité

Présentation

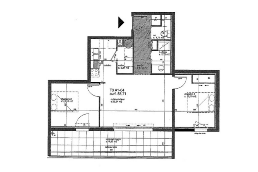
A LOUER - NANTES - PARC DE LA GRENERAIE - Appartement 3 pièces de 55.71 m² - Dans cette résidence récente de 2009 sur les bords de Loire, aux pieds du busway (ligne 4) et de toutes commodités, agréable appartement de 3 pièces de 55.71m². Situé en rez-de-chaussé sécurisé côté jardin, ce logement ensoleillé vous offre une entrée avec placard et wc, un séjour lumineux avec cuisine ouverte le tout donnant sur une vaste terrasse de 14.85 m² exposée sud avec vue sur les espaces verts, un cellier, deux chambres dont une avec placard et une salle d'eau. Garage en sous-sol. Chauffage et eau individuels électriques.

Logement Eligible à VISALE
Vous avez entre 18 et 30 ans ou si vous être salariés de + de 30 ans
Testez votre éligibilité sur le site de https://www.visale.fr/
Agent de location :
Julie HIEBLOT 06.38.64.13.34. Le bien est soumis au statut de la copropriété.

Loyer de 811,00 euros par mois charges comprises dont 52,00 euros par mois de provision pour charges (soumis à la régularisation annuelle).
Les honoraires charge locataire sont de 701,00 euros ( soit 12,75 euros/m² ) dont 165,00 euros pour état des lieux ( soit 3,00 euros/m² ).
Montant estimé des dépenses annuelles d'énergie pour un usage standard : entre 1 100 et 1 530 euros. Prix moyens des énergies indexés en 2021.

Informations complémentaires

Type T3
Etage -
Année 2009
Chauffage Electrique, Individuel, Radiateur
Loyer 811 € CC/mois
Honoraires 701 €
Nombre de chambres 2
Nombre de pièces 3
Salle(s) de bain -
Surface habitable 55 m²
Surface séjour 23 m²
Surface terrain -
logement très performant logement extrêmement consommateur d'énergie kWh/m² par an consommation (énergie primaire) kgCO₂/m² par an emissions DPE_ DPE_
kg CO₂/m² par an A B C D E F G émissions de CO₂ très importantes peu d'émissions de CO₂ * Dont émissions de gaz à effet de serre

 

Localisation du bien

 

Demande d'informations

Lefeuvre Immobilier Nantes Sigma 2000

Location  |  Gestion

Sigma 2000 - 7ème Étage
5 bd Vincent Gâche - CS 16327
44263 - Nantes Cedex 2

Service Gestion Locative : 02 46 88 00 39
Service Location : 02 51 72 94 76

Horaires d'ouverture :Du lundi au jeudi de 8h45 à 12h30 et de 13h30 à 17h30.
Le vendredi de 8h45 à 12h00 et de 13h30 à 17h00.

Fiche de l'agence  Localiser

En soumettant ce formulaire, j'ai bien pris connaissance que les informations saisies seront exploitées dans le cadre de la gestion de ma demande.
Pour en savoir plus, consultez notre Mention d'information sur le traitement des données personnelles Mention d'information sur le traitement des données personnelles.

 

Biens pouvant vous intéresser

Menu